防腐系列
Corrosive Resistant
氟塑料襯里閥門系列當前頁面:首頁 > 氟塑料襯里閥門系列
鋼襯F46放料閥

概述
F46襯里放料閥,主要安裝在反應釜底部作放料使用。
結構特點
同F46襯里球閥,主要區別在于二端法蘭大小的不同,大頭同設備相連,一般采用0.6MPa級;小頭同管道相連,一般采用1.6MPa級。
同F46襯里球閥,主要區別在于二端法蘭大小的不同,大頭同設備相連,一般采用0.6MPa級;小頭同管道相連,一般采用1.6MPa級。
設計規范
遵循GB12237/API608/API6D標準。
遵循GB12237/API608/API6D標準。
驅動方式
手動,蝸輪傳動,氣動,電動。
手動,蝸輪傳動,氣動,電動。
性能規范
| 設計與制造 | 結構長度 | 聯結法蘭 | 壓力試驗 | 產品標志 | 供貨要求 |
| GB/T12237 | HG/T3704-2003 GB/T1221 | HG20592-97 | GB/T13927-92 | GB12220 | GB/T12252 |
公稱壓力:PN1.0-1.6(MPa),公稱通徑:DN15-DN250(mm)。
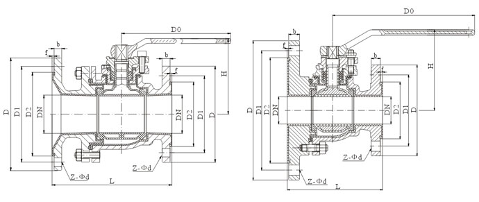
F46襯里放料閥/非標放料閥示意圖

主要連接尺寸及重量
| 公稱通徑 | 標準值 | 參考值 | |||||||||
| DN(mm) | L | D | D1 | D2 | f | b | Z-Φd | Do | H | W(kg) | |
| PN1.0(MPa) | |||||||||||
| 69(標) | 100/50 | 200 | 160/230 | 125/190 | 100/165 | 3/4 | 20/22 | 4-Φ18/8-Φ14 | 250 | 125 | 13 |
| 125/80 | 250 | 195/245 | 160/210 | 135/185 | 4/4 | 22/24 | 4-Φ18/10-Φ14 | 300 | 184 | 22 | |
| 79(標) | 70/32 | 165 | 140/160 | 100/130 | 75/100 | 3/3 | 18/20 | 4-Φ18/4-Φ14 | 200 | 115 | 10 |
| 80/40 | 180 | 145/185 | 110/150 | 85/125 | 4/4 | 18/20 | 4-Φ18/4-Φ18 | 250 | 125 | 11 | |
| 100/50 | 200 | 160/205 | 125/170 | 100/145 | 3/4 | 20/22 | 4-Φ18/4-Φ18 | 250 | 125 | 11.5 | |
| 125/80 | 250 | 195/245 | 145/200 | 135/175 | 4/4 | 22/24 | 4-Φ18/8-Φ18 | 300 | 184 | 22 | |
非標放料閥主要連接尺寸
| 公稱通徑 | 標準值 | 參考值 | |||||||
| DN(mm) | L | D | D1 | D2 | f | b | Z-Φd | Do | H |
| 80/50 | 175 | 160/195 | 125/150 | 100/135 | 3/3 | 20/20 | 4-Φ18/8-Φ18 | 250 | 135 |
| 100/50 | 175 | 160/215 | 125/170 | 100/155 | 3/3 | 20/22 | 4-Φ18/8-Φ18 | 250 | 135 |
| 125/50 | 175 | 160/240 | 125/200 | 100/180 | 3/3 | 20/24 | 4-Φ18/8-Φ18 | 250 | 135 |
| 125/65 | 190 | 180/240 | 160/225 | 120/180 | 3/3 | 20/24 | 4-Φ18/8-Φ18 | 300 | 145 |
| 125/80 | 220 | 195/265 | 125/170 | 135/210 | 3/3 | 22/24 | 8-Φ18/8-Φ18 | 350 | 185 |
| 150/100 | 280 | 215/265 | 180/225 | 155/190 | 3/3 | 22/24 | 8-Φ18/8-Φ18 | 400 | 195 |
表格中分子為公稱通徑及相應尺寸,分母為大端法蘭尺寸
< 返回 >








